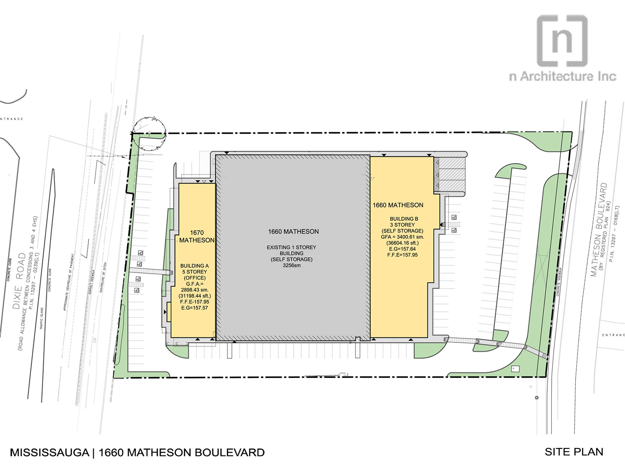
n Architecture Inc. was commissioned to work on this project in 2013. The Self-Storage management wanted to increase the capacity of the existing building by adding a 3–storey extension to the east side. This extension was built on site to promote the look of the existing building as well as being perfectly blending.
The Office building was added to the west side of the existing building in a 5-storey design as an individual new building. To achieve a harmonious design in site, satisfying both usages of storage and office, n Architecture Inc. exploited common materials and followed the same compositions but in different format. The result was a nice flow between the buildings in site while maintaining the building’s individuality based on their usage and practicality.
The Material we specified was Beige Brick which work well in both modern and traditional look and Black Brick as accent brick. Natural and earthy tones of Beige brick offer a nice contrast with accent black brick. To add more interest we have added touches of red bricks. Various tones of bricks, different installation patterns and the colour pallet have a look and feel of a relaxing (natural tones) and luxurious (bolder contrast) atmosphere.
Address: 1660 Matheson Boulevard, Mississauga, ON
Commissioned in: 2013
Scope of Work: Site Plan Approval, Building Permit
Status: Site Plan Approved. Going through Building Permit Stage
n Architecture Inc. is progressive Architecture firm in the Greater Toronto Area.













