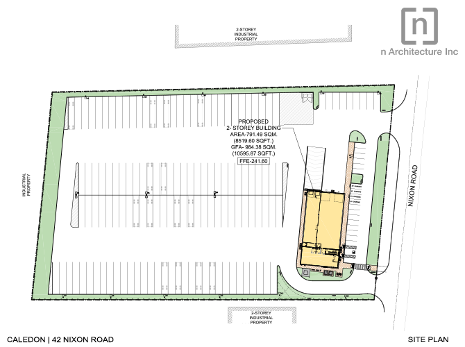
n Architecture Inc. was commission to design a modern two-storey industrial facility on a prominent 5.0-acre site located at 42 Nixon Road, Caledon, Ontario. Thoughtfully planned and carefully executed, the development reinforces the strong industrial character of the neighbourhood while fitting seamlessly within the existing urban fabric along Nixon Road. With a total gross floor area of 10596 sq.ft, the building is conceived as a unified structure integrating warehouse service bay areas and ancillary spaces.
The elevation emphasizes the office component through a glazed curtain wall and integrated signage feature, establishing a confident street presence. Parking is discreetly located at the rear, with surface-level truck, trailer, and car parking efficiently organized to support circulation and daily operations.
n Architecture Inc. is a progressive architecture firm in the Greater Toronto Area.
Address: 42 Nixon Road, Caledon
Commissioned in: 2022
Site Area: 5 Acres
Number of Storeys: 2
Amenities: 2 storey warehouse building with office
Scope of Work: Site Plan Application and Building Permit
Status: Completed as of February 2026









