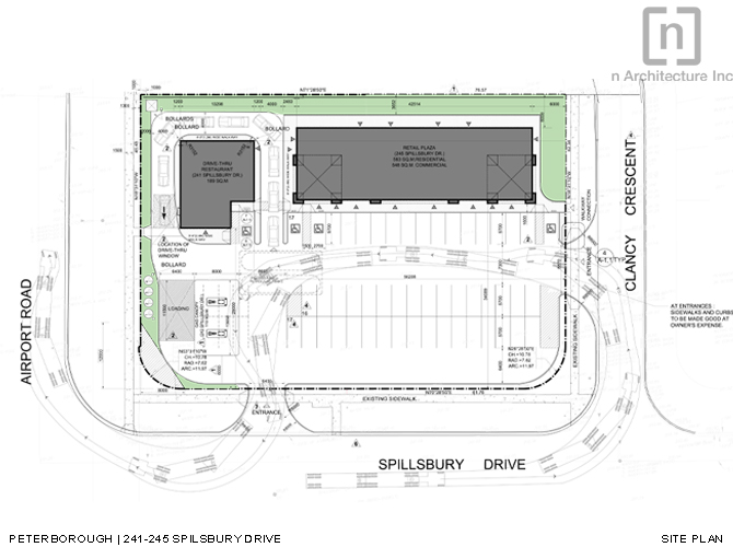
Plaza Spillsbury Commons Peterborough
Address: 241-245 Spillsbury Drive, Peterborough, ON
Commissioned in: 2012
Site Area: 1 Acres
Amenities: a 2 pump Gas Canopy, Restaurant with drive-thru, and Retail Building
Scope of Work: Site Plan and Building Permits
Status: Pending Construction
Mixed use project commissioned in 2012. The development consisted of 6 Retails units on the First Floor coupled with 6 Residential units on the Second Floor. There was also a small Gas station component complete with a Drive-thru restaurant. The design was very well received by the City of Peterborough.




