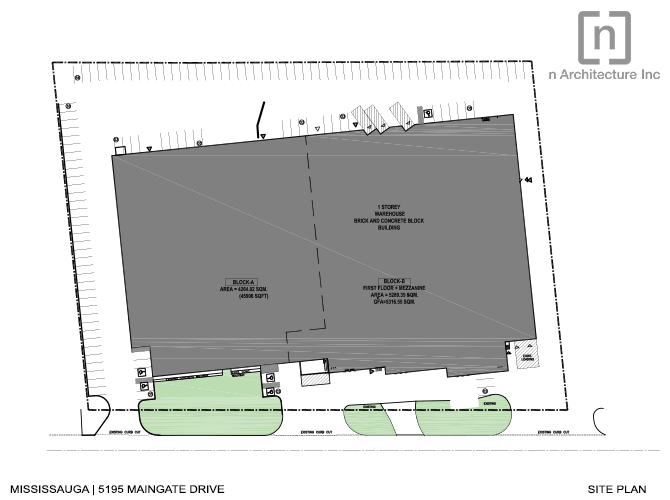
Mississauga | 5195 Maingate Drive
Address: 5195 Maingate Drive, Mississauga, ON
Commissioned in: 2017
Site Area: 4.19 Acres
Number of Storeys: 1
Scope of Work: Interior Renovation
Status: Completed as of 2022


Mississauga | 5195 Maingate Drive
Address: 5195 Maingate Drive, Mississauga, ON
Commissioned in: 2017
Site Area: 4.19 Acres
Number of Storeys: 1
Scope of Work: Interior Renovation
Status: Completed as of 2022

