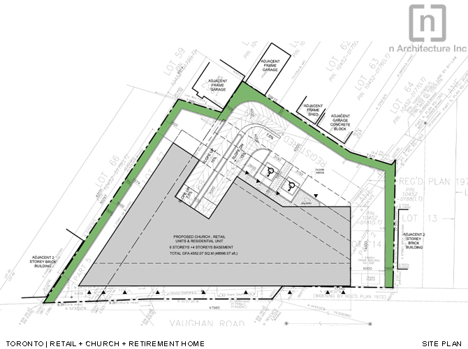
Aspirations of a small Church culminated into the design of this mixed use building that will thrive on the creative use of coloured glass and an innovative façade. Currently located on a tight urban site in Toronto the church was looking to expand. They wanted a bigger sanctuary area for their growing congregation, a retail space that would generate passive income and a retirement component that would ensure that the elderly members of the church were well taken care of.
Facing a really tight street, it was decided from the onset of the project that two side elevations (and not the front) would be the area of focus. The introduction of the multi coloured glass fins adds interest and a sense of progression to both the pedestrians and the motorists alike. These coloured fins that draw inspiration from the stained glass windows of the traditional church design also provide privacy to the activities on the upper floors.
This building will have 6 storeys and 2 Basement levels: the retail space will be on the 1st floor, the church on the 2nd and 3rd floors ,4th, 5th &6th floors will have the retirement component and there will be two storeys of underground parking.
Status: Design Phase
n Architecture Inc. is progressive Architecture firm in the Greater Toronto Area.











