Iroquois | 10791 County Road 2
Address: 10791 County Road 2, Iroquois, ON
Brand: Undecided
Amenities: 4 pump gas station with C-Store and Tim Horton’s
Status: Going through site plan application as of December 2018

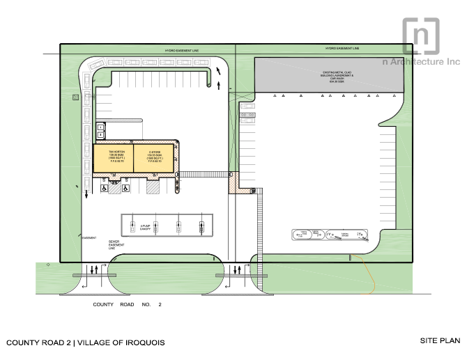
Iroquois | 10791 County Road 2
Address: 10791 County Road 2, Iroquois, ON
Brand: Undecided
Amenities: 4 pump gas station with C-Store and Tim Horton’s
Status: Going through site plan application as of December 2018
