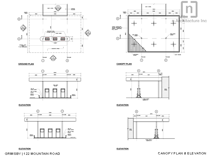
Grimsby | 122 Mountain Road

Address: 122 Mountain Road, Grimsby, ON

Brand: XTR

Amenities: 2 pump Gas Canopy

Scope of Work: Building Permit for Gas Canopy