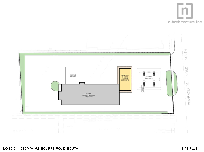
London | 689 Wharncliffe Road South

Address: 689 Wharncliffe Road South, London, ON

Site Area: 1Acres

Brand: Undecided

Amenities: 4 pump Gas Canopy, Convenience Store, Food Partner and 1 storey building

Scope of Work: Concept Design for Convenience Store addition