Lambton Shores | Grand Bend
Address: Grand Bend, Lambton Shores, ON
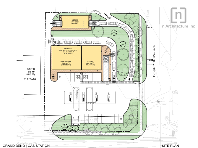
Site Area: 1 Acres
Brand: Esso
Amenities: 4 pump Gas Canopy, Convenience Store, Food Partner and Car Wash
Scope of Work: Site Plan Approval
Status: Under Site Plan Approval as of April 2017






